「池袋」駅店舗【物件No.01698】
イーストテラス
| 共益費 | 規模 / 所在階 | 面積 | 竣工 |
|---|---|---|---|
| 5,000円 | 8階建 / 1階 | 18.18m² | 1988年5月 |
池袋駅から徒歩8分!人気の東池袋エリアの大通り沿いで1階路面店が出ました。
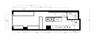
多くの飲食店でにぎわうターミナル駅の池袋で、元韓国チキン店の物件が出ました。六ツ又陸橋近くの1階路面店で、明治通りと春日通りの交差点からも目立つので、視認性の高い物件です。周辺には大学やオフィスなどがあり、飲食需要が高いエリアです。以前はラーメン屋だったこともあり様々な業態で相談可能です。お早めにお問合せください

-

- 営業時間:10:00~19:00
- 定休日:日曜日、祭日、隔週土曜日

-
築年月 1988年5月 建物構造 鉄骨造 / 8階建 駐車場 - 駐車場賃料 - 保証金 10ヶ月 償却金 3ヶ月 更新料 新賃料の1.5ヶ月分 主要採光面 - 家財保険 - 入居時期 即時 現況 空室 設備・条件 居抜き , 1階 設備・条件 1階店舗 , 居抜き 備考 ・造作価格:500,000円
・中途礼金:3年毎に賃料の1.5ヶ月(初回2029年2月28日発生)
・不可業態:シーシャバー不可/営業時間制限:24時迄
契約期間 6年 定期借家 , 定期借家再契約可 取引態様 仲介 自社管理番号 - 最終更新日 2026年03月12日

-
- この賃貸店舗と条件の近い賃貸店舗を探す

-

- 営業時間:10:00~19:00
- 定休日:日曜日、祭日、隔週土曜日
























